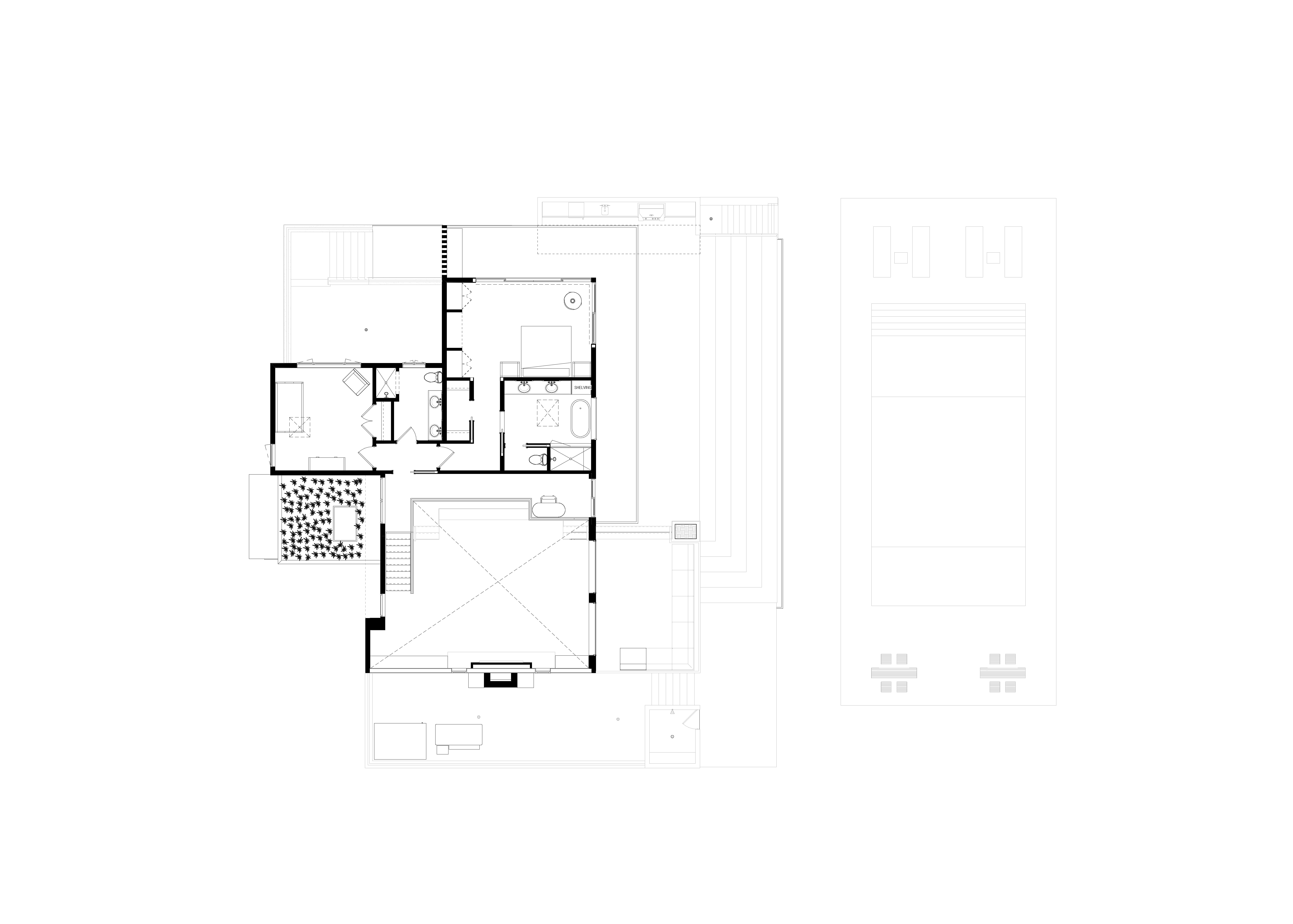
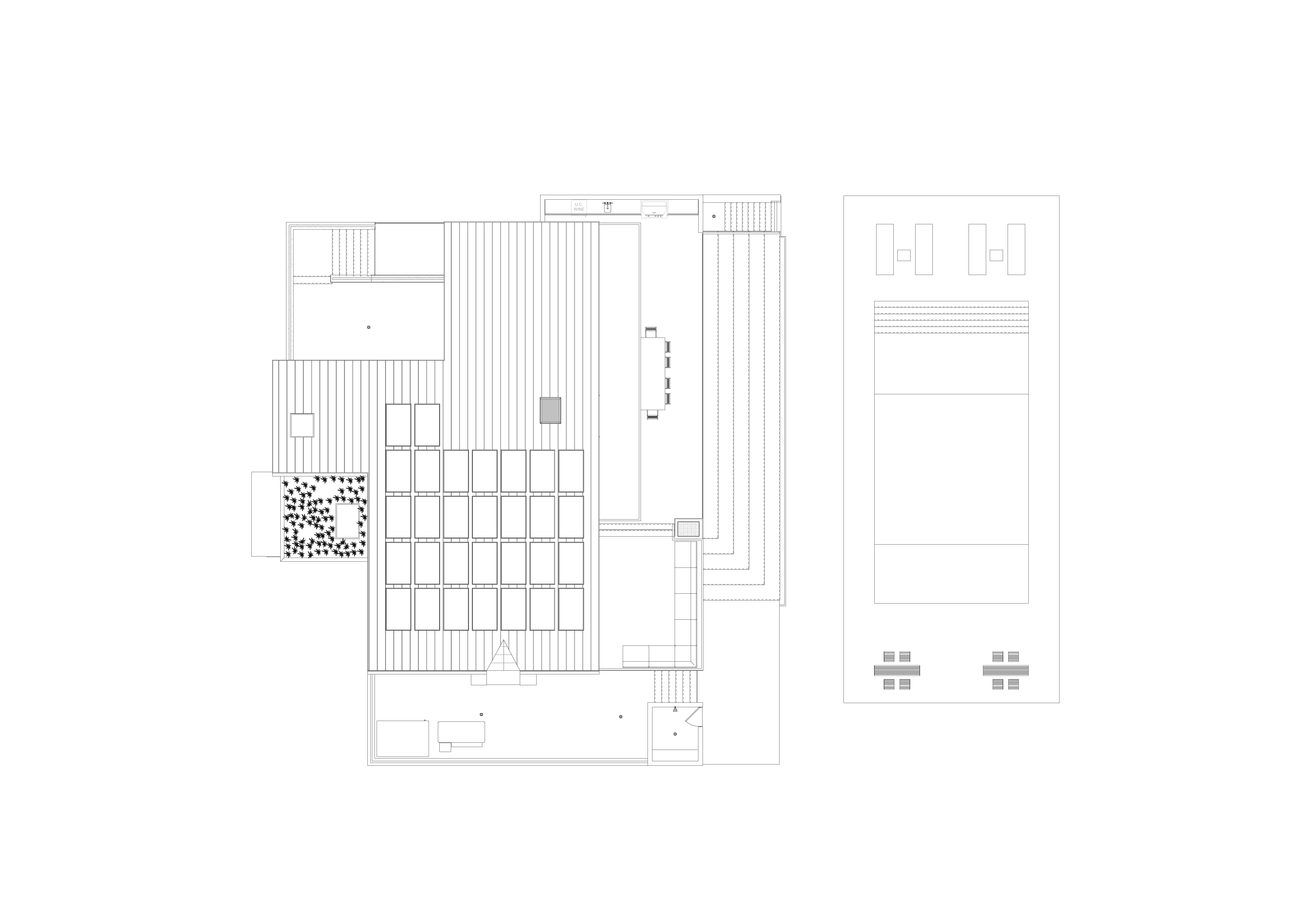
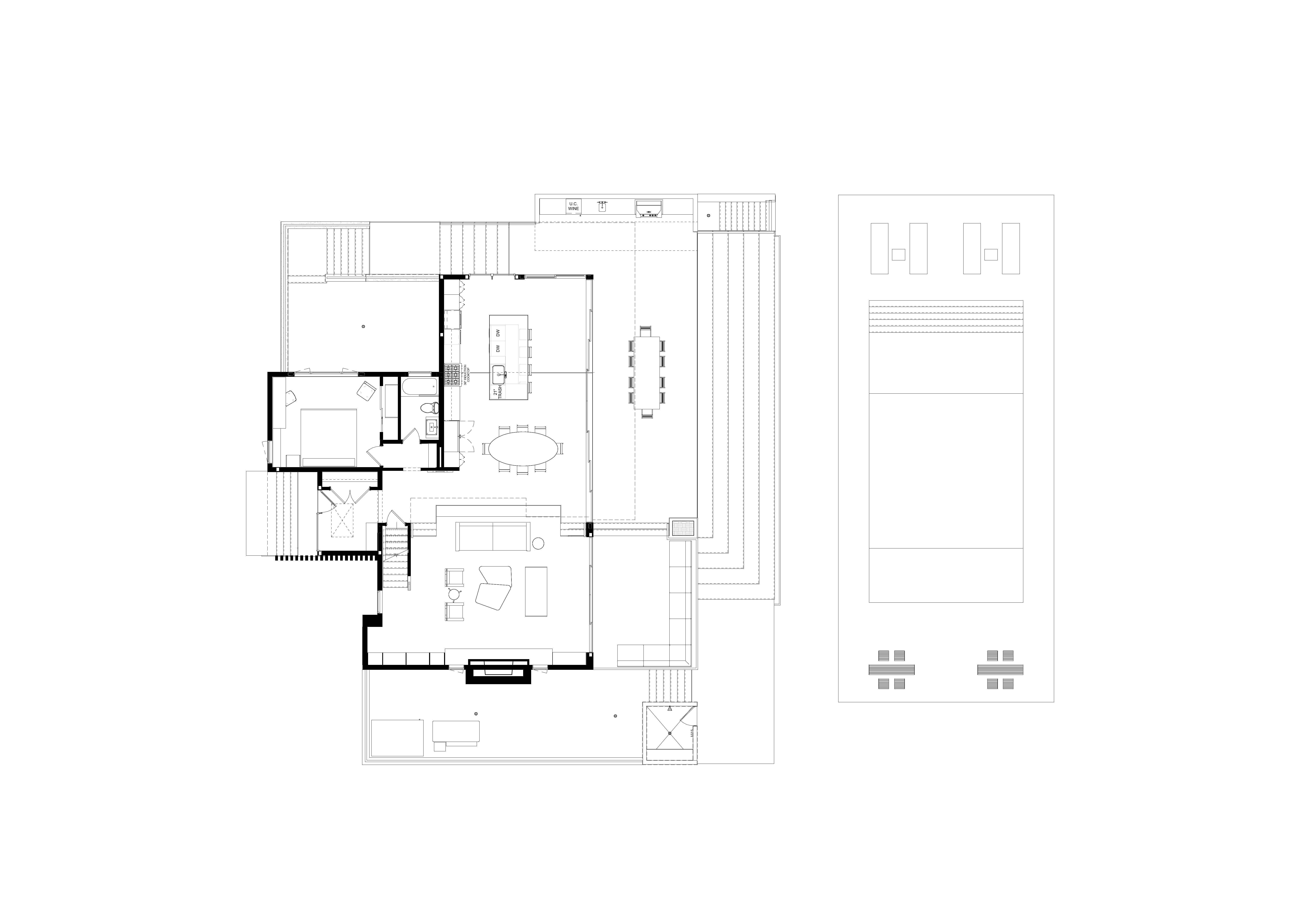
Contemporary Beach House Expansion in Amagansett

Amagansett Residence

Amagansett
2022-2023
Design Team
Kristal Delgado
Ray Delgado
Zachary Clanahan
Jeremy Delgado
Photographer
Jimmy Elliott, Renderings
Renderings
Consultants
Jimmy Elliott, Renderings